
Рассеиватель ЭР1 FERGIPS
90 ₽/м.п.
Наличие
В наличии
Длина
2000 мм
Ширина
25 мм
Высота
79 мм
1620 ₽/м.п.
Описание:
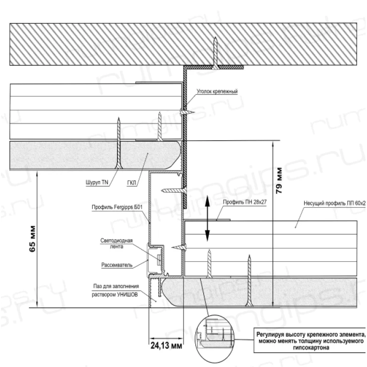
Конструкция профиля Б 01 позволяет установить светодиодную ленту, которая является дополнительным источником декоративного света. А если поставить многоцветную диодную ленту, Вы сможете менять цвет освещения в зависимости от настроения или интерьера. Свет может быть белым, цветным или даже менять свои оттенки. Управлять яркостью и менять её цвет можно дистанционно с помощью пульта или через смартфон при наличии wi-fi контролёра. Интенсивность свечения можно регулировать, установив диммер.
Подиум может стать местом крепления люстры или других источников освещения, используется как для зонирования помещения, так и в декоративных целях.
Преимущества:
Узнай первым о новинках, мероприятиях и спецпредложениях
Товар добавлен в корзину