
Винт установочный
7 ₽/шт.
Наличие
Уточняйте у менеджеров
2780 ₽/м.п.
Описание:
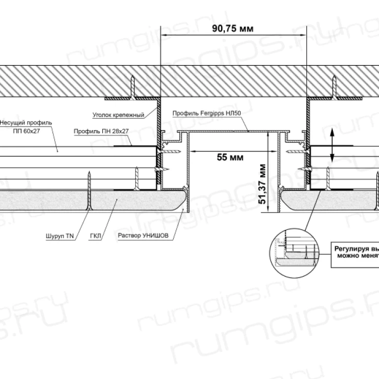
Профиль НЛ 50 от FerGipps используется в тандеме с линейными светильниками. Эти продукты хорошо справляются с ролью дополнительного освещения. С их помощью можно расставить световые акценты на потолке и таким образом зонировать помещение.
Также данный профиль НЛ 50 может быть использована с интегрированной трековой системой Track 30 или раздвижным электрокарнизом и стать изюминкой любого интерьера
Это современное решение всегда смотрится стильно и красиво. Глубина ниши позволяет скрыть блок питания, что делает внешний вид еще более эстетичным.
Преимущества:
• Возможность интеграции в потолок множества решений, таких как: линейные светильники, трековое оборудование, электрокарнизы разных производителей
• Выполняет роль как основного, так и дополнительного освещения
• Позволяет расставить световые акценты и зонировать помещение
• Светильник работает от сети 220В, есть возможность замены светодиодной ленты и блоков питания при необходимости
• Любая длина ниши, а форма с углом стыковки конструкции 90 градусов: прямая линия, П-образная, Г-образная, прямоугольная, квадратная
• Возможность установить 1 или 2 листа гипсокартона любой толщины
• Не нужно фрезеровать гипсокартон и зенковать отверстия в профиле
• Не нужно сверлить стены – профиль крепится к потолку и вписан в каркас потолка
• Вариант выбора профиля белого или чёрного цвета для создания гармоничного или контрастного сочетания
• Возможность сделать нишу от стены до стены или с обрывом
• Продуманная конструкция кратно сокращает сроки монтажа. Не нужно фрезеровать, зенковать, адаптировать и дорабатывать узел по месту.
• Профиль прост в монтаже. Просмотрев наши обучающие видео, можно быстро усвоить все тонкости работы с ним.
Узнай первым о новинках, мероприятиях и спецпредложениях
Товар добавлен в корзину